
CAUTION: The vacuum pump must be centered in
the block and tighten with two bolts. Ensure that
the pump spins freely. If vacuum pump drags or
does not spin freely loosen bolts and perform pro-
cedures again.
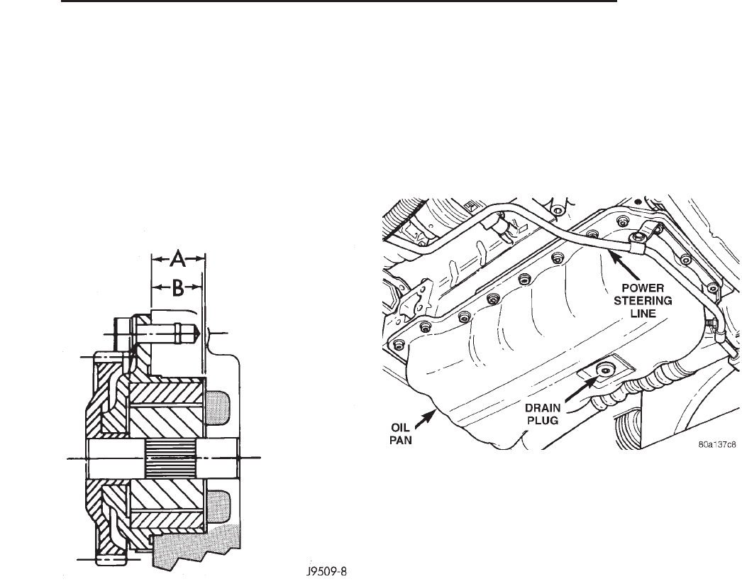
(29) Before installing oil pump check pump bore
depth in block (A) and pump body height (B) (Fig.
58). Difference between A and B should be
0.020-0.082 mm (.0007 to 0032 in.).
(30) Install oil pump and tighten retaining screws
to 27 N·m (20 ft. lbs.). Check for normal backlash
between pump and crankshaft gears.
(31) Install oil pump drive Gear.
(32) Install front cover. Refer to procedure in this
section.
(33) Install vibration damper. Refer to procedure
in this section.
(34) Install cylinder heads. Refer to procedure in
this section.
(35) Install rocker arms and push rods. Refer to
procedure in this section.
(36) Install cylinder head cover. Refer to procedure
in this section.
(37) Install accessary drive system.
(38) Install engine in vehicle. Refer to procedure in
this section.
(39) Fill engine with the correct amount of fluids
specified.
(40) Connect battery cable.
OIL PAN
REMOVAL
(1) Disconnect battery cable.
(2) Raise vehicle on hoist.
(3) Drain oil.
(4) Remove oil pan bolts (Fig. 59).
(5) Remove oil pan.
INSTALLATION
(1) Install oil pan. Apply a continuous 3 mm bead
of Silicone Sealer to oil pan, install within 10 min-
utes.
(2) Install oil pan bolts and torque bolts to 11 N·m
(8 ft. lbs.).
(3) Install oil drain plug tighten to 79 N·m (58 ft.
lbs).
(4) Lower vehicle.
(5) Fill engine with proper amount of oil.
(6) Connect battery cable.
OIL PUMP
REMOVAL
(1) Raise vehicle on hoist.
(2) Remove right splash shield.
(3) Remove both accessory drive belts. Refer to
Group 7, Cooling.
(4) Remove pump shaft support bracket assembly.
(5) Remove vibration damper. Refer to Vibration
Damper Removal in this section.
NOTE: Crankshaft damper nut is left handed
thread.
(6) Remove front cover. Refer to Timing Chain
Cover Removal in this section.
(7) Remove oil pump drive gear at crankshaft (Fig.
60).
(8) Remove oil pump.
Fig. 58 Oil Pump Bore Depth
Fig. 59 Oil Pan
NS/GS ENGINE 9 - 63
REMOVAL AND INSTALLATION (Continued)
Komentáře k této Příručce